Skrýt sortiment Sortiment
Kontakty

IF-Triade Slim neviditelný držák polic

Kód sortimentu 515089
Základní cena za ks
127,01 Kč 153,68 Kč s DPH
Na objednávku
Koupit
Značka
Italiana Ferramenta
Kód skupiny
10700105
Jednotka (MJ)
ks
Rozbalitelnost
100 ks
Balení
100 ks
Popis a parametry

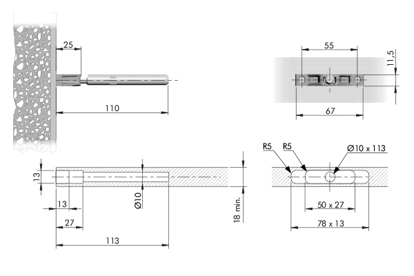
Nosnost páru při hloubce police 200mm = 15kg. Umožňuje třístranné seřízení-vertikální,boční a seřízení sklonu. Montáž do stěny pomocí 2 hmoždinek pr.6mm a 2 šroubů velikosti 4,5m, rozteč vrtání 55mm. Průměr trnu 10mm, délka trnu 85mm,celková délka 110mm. Minimální tloušťka police 18 mm. VELMI DŮLEŽITÉ. Držáky musí být vždy montovány nápisem "TOP-ALTO" nahoru.

Související dokumenty

Montážní návod

Naposledy navštívené