Skrýt sortiment Sortiment
Kontakty
Kování a doplňkový materiál Nábytkové závěsy a výklopy Závěsy Závěsy ostatní FURNITAL závěs zafrézovaný, niklovaný s tlumeným dotahem, pravý

FURNITAL závěs zafrézovaný, niklovaný s tlumeným dotahem, pravý

Kód sortimentu 409063
Základní cena za ks
587,55 Kč 710,94 Kč s DPH
Doprodej
Více informací
Koupit
Značka
N/A
Kód skupiny
10100103
Jednotka (MJ)
ks
Rozbalitelnost
1 ks
Balení
50 ks
Popis a parametry

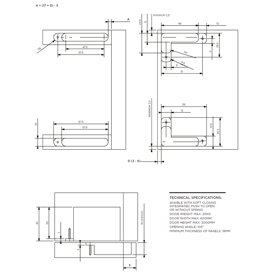
High-end a trendy design závěsů. Niklované provedení. Skvělé parametry. Závěs i miska zafrézovaný do korpusu a dveří. Verze s tlumeným dotahem. Dynamická zatížitelnost je 16kg na pár. Úhel otevření 105°. Možnost vrtání od kraje dveří K=3-6mm. Min tloušťka materiálu k zafrézování je 18mm.
Integrované seřízení hloubky +2/-0,5 mm, integrované nastavení naložení +2/-2 mm, integrované seřízení výšky +1,5/-1,5 mm.

Do vyprodání zásob

Parametry

Parametr Hodnota
Montáž do materiálu K zafrézování
Úhel otevření 105

Naposledy navštívené